The kennedy
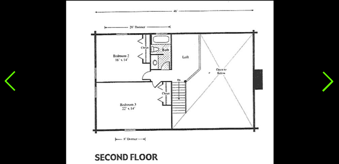
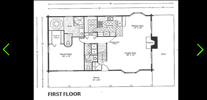
The Kennedy is a loft style home with full log walls and a heavy timber roof system. It has 3 bedroom and 2 1/2 bath. The porch consists of log posts, log headers and conventional deck construction.
- 2000 SF
- 28 x 46
- Loft
- Anderson windows
- Full Log Construction
- Log Porch
Every log home Treetop Log Homes build is unique to each individual homeowner. The home
portrayed may not be the exact package, but is modified from it. This Gallery includes 8 pictures of our
Kennedy model.
Please use the Prev and Next buttons to view all pictures.








